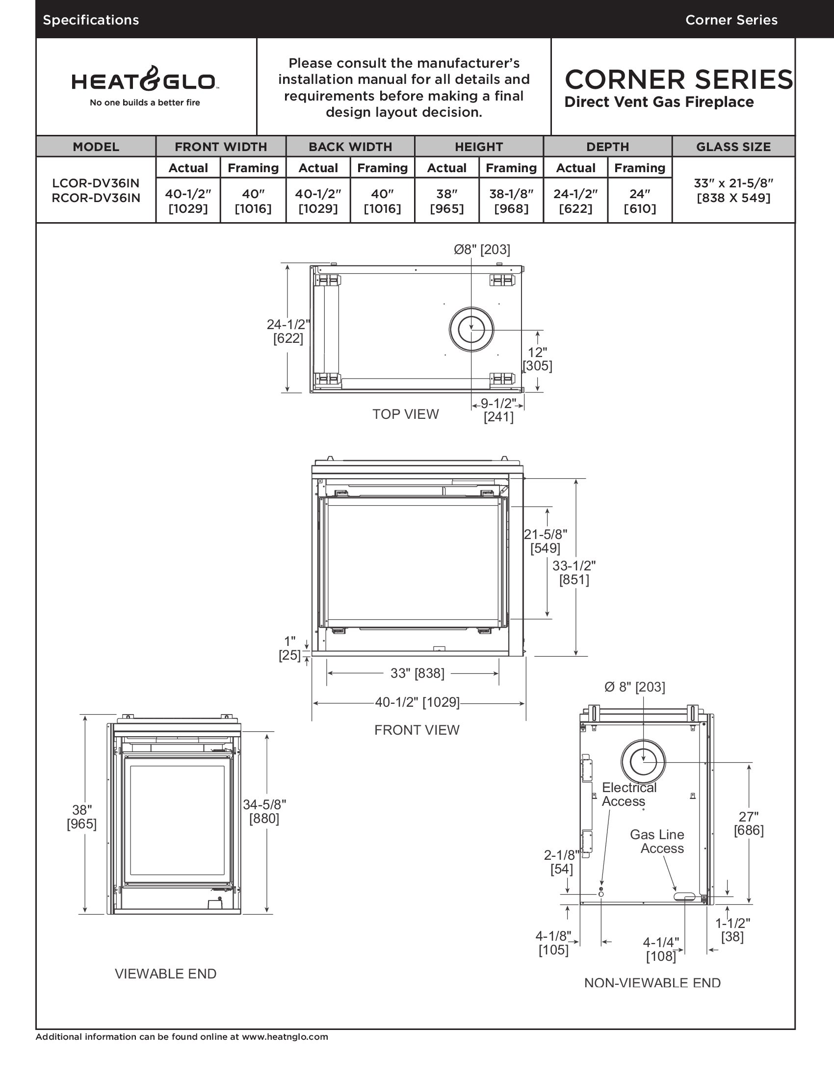
Corner Fireplace
Right Corner, Left Corner
The corner series adds architectural interest to every home, offering dramatic viewing of the fire from separate areas of the room. User-friendly controls enables you to match flame height and heat output to your mood.
DIRECT VENT TECHNOLOGY
Removes any fumes or combustion exhaust efficiently and effectively from your home.
TWO-SIDED VIEWING
Expands your viewing of the fire from two rooms at once and adds multiple design possibilities.
- Manufacturer:
- Heatilator
- Application:
- Indoor, See-Through
- Fireplace Type:
- Gas, See-Through, Traditional
- Size:
- 36IN

Electric Fireplaces
With sleek designs, easy installation, and energy efficiency, these modern marvels are transforming spaces